Urbaner Balkonblick
2700 Wiener Neustadt, Wohnung zur Miete






Objektdaten
-
Objekt-ID3606
-
ObjekttypWohnung
-
Adresse2700 Wiener Neustadt
Niederösterreich -
Etage1
-
Wohnfläche ca.71,50 m²
-
Balkon-/Terrassenfläche ca.7,80 m²
-
Zimmer3
-
Badezimmer1
-
Separate WC1
-
Balkone1
-
HeizungsartZentralheizung
-
Wesentlicher EnergieträgerFernwärme
-
Baujahr2025
-
ZustandErstbezug
-
Erschließungvollerschlossen
-
BauweiseMassiv
-
Heizwärmebedarf (HWB)26,26 kWh/(m²·a) (Klasse B)
-
Gesamtenergieeffizienz-Faktor (fGEE)0,63 (Klasse A+)
-
Stellplätze gesamt1
-
Außenstellplatz1
-
Garagenstellplatz1 Stellplatz
-
MieterprovisionGemäß Erstauftraggeberprinzip bezahlt der Abgeber die Provision.
-
Summe Miete netto934,96 EUR
-
Gesamtmiete netto934,96 EUR
-
Gesamtmiete934,96 EUR
Ausstattung / Merkmale
- ✓ Abstellraum
- ✓ Badewanne
- ✓ Balkon
- ✓ Fahrradraum
- ✓ Fliesenboden
- ✓ Laminatboden
- ✓ Massivbauweise
- ✓ Neubau
- ✓ Personenaufzug
- ✓ Separates WC
- ✓ Tiefgarage
Energieausweis
Objektbeschreibung
Beschreibung
Ein Ort zum Ankommen und Wohlfühlen – mitten in Wiener Neustadt
Hier beginnt ein neues Kapitel: mit frischer Perspektive, neuen Möglichkeiten und dem guten Gefühl, genau richtig zu sein.
Die Wohnanlage wurde für Menschen konzipiert, die modernes Design mit einem ruhigen, grünen Umfeld verbinden möchten. Ob Familie, Paar oder Single – wer Wert auf ein ausgewogenes Zusammenspiel aus Komfort, Nachbarschaft und verantwortungsbewusstem Wohnen legt, findet hier den passenden Rückzugsort.
Großzügige Grünbereiche und ein bewusst verkehrsberuhigtes Konzept schaffen eine entspannte Atmosphäre. Kinder haben Platz zum Entdecken und Spielen, während Erwachsene Ruhe und Erholung auf der Terrasse, im Garten oder auf dem Balkon genießen.
Überblick der Wohneinheiten:
- Wohnungsgrößen ca. 51 bis 89 m²
- 2 – 4 Zimmer
- mit Eigengarten und Terrasse bzw. Balkon oder Dachterrasse
- Autoabstellplatz in der Tiefgarage
Ausstattung im Detail:
- Böden: Laminat und Fliesen
- Wärmeversorgung durch Fernwärme
- Wärmeabgabe mittels Radiatoren
- Einlagerungsräume
- Fahrradräume und Kinderwagenabstellräume
- Barrierefreie Personenaufzüge
- Kunststofffenster mit 3-Scheiben Isolierverglasung
- Photovoltaik-Anlage – zur Verwendung für die Versorgung der Allgemeinbereiche
- Auf Sonderwunsch: Nachrüstung funkgesteuerter Vorbau-Rollläden
Lage:
Die Umgebung überzeugt durch eine hervorragende Versorgung und kurze Wege. Medizinische Einrichtungen wie Arztpraxen, Apotheken sowie ein Krankenhaus sind ebenso rasch erreichbar wie Schulen und Kindergärten. Damit ist für alle Generationen bestens gesorgt. Auch die Nahversorgung lässt keine Wünsche offen: Mehrere Supermärkte, eine Bäckerei und das Einkaufszentrum Merkur City befinden sich in unmittelbarer Nähe und sorgen für bequeme Einkaufsmöglichkeiten.
Verkehrsanbindung:
Autobahn: Die Auffahrt zur Mattersburger Schnellstraße S4 befindet sich nur etwa fünf Autominuten entfernt. Über sie gelangen Sie rasch zur B17 sowie zur Südautobahn A2.
Bus: Die Buslinie 4 verbindet Sie direkt mit den zentralen Anlaufstellen Wiener Neustadts. Sie fährt unter anderem den Hauptbahnhof, den Hauptplatz, den Fischapark sowie die Merkur City an. Der Hauptbahnhof ist dadurch in etwa 20 Minuten erreichbar, die Linie verkehrt im regelmäßigen 30-Minuten-Takt.
Nur wenige Gehminuten entfernt befindet sich zudem eine Haltestelle, die von den Linien 1A, 1B, 3, 7 und 8 bedient wird und Ihnen bequeme Verbindungen in die umliegenden Stadtteile bietet.
Hauptbahnhof Wiener Neustadt: Der Hauptbahnhof Wiener Neustadt ist etwa 3 km entfernt und sowohl mit dem Auto als auch mit den Buslinien leicht erreichbar. Von hier bestehen regelmäßige Zugverbindungen nach Wien, Graz und zahlreiche weitere österreichische Regionen.
Freizeitmöglichkeiten in Wiener Neustadt:
Natur & Erholung:
Der Freiheitspark liegt nur etwa 600 Meter entfernt und lädt zu entspannten Spaziergängen ein. In rund 1,5 Kilometern erreichen Sie den weitläufigen Akademiepark, und der Stadtpark befindet sich in ungefähr 2 Kilometern Entfernung.
Sport & Bewegung:
Für sportliche Aktivitäten stehen zahlreiche Möglichkeiten zur Verfügung. Das Erlebnisbad Aqua Nova erreichen Sie nach etwa 4 Kilometern, während das Akademiebad nur rund 1,5 Kilometer entfernt liegt. Der 36 Kilometer lange Rosaliaradweg verbindet Wiener Neustadt mit dem Burgenland und eignet sich ideal für ausgedehnte Radtouren. Darüber hinaus gibt es Fußball- und Tennisplätze sowie viele Spazierwege in den umliegenden Parks.
Gerne stehe ich Ihnen für eine persönliche Beratung zur Verfügung!
Ausstattung gemäß Baubeschreibung (die dargestellte Möblierung ist nicht Bestandteil des Lieferumfanges und dient nur als Einrichtungsvorschlag). Alle dargestellten Gegenstände haben symbolhaften Charakter. Druck- und Satzfehler, sowie Irrtümer und baulich bedingte Änderungen vorbehalten. Die Wohnungsgrößen sind Circa-Angaben und können sich durch die Detailplanung geringfügig ändern. Maßgeblich ist in jedem Fall der Kaufvertrag.
Wir weisen darauf hin, dass zwischen dem Vermittler und dem zu vermittelnden Dritten ein wirtschaftliches Naheverhältnis mit gesellschaftlicher Verflechtung besteht.
Sonstiges
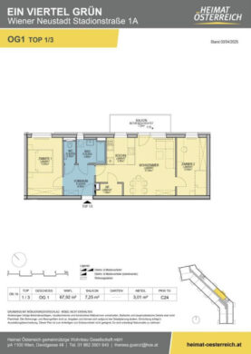
Top 1/4 (1. Obergeschoss)
- Vorraum
- Separates WC
- Badezimmer (Badewanne, Waschmaschinenanschluss)
- Zimmer 1 mit rd. 14 m²
- Zimmer 2 mit rd. 12 m²
- Abstellraum
- Wohnküche mit Ausgang auf den Balkon
- Balkon mit rd. 7 m²
- Einlagerungsraum im selben Geschoss
- 1 KFZ-Stellplatz in der Tiefgarage, über Stiegenhaus und Lift gut erreichbar
Gesamtmiete inkl. MwSt € 934,96
Finanzierungsbeitrag: € 25.025,00
Provisionsfreie Vermietung
Kontaktdaten
-
NameFrau Nina LANG
-
PositionImmobilienberaterin
-
FirmaS-COMMERZ Immobilienvermittlung GmbH
-
AnschriftHauptplatz 10
2620 Neunkirchen -
E-Mail
-
Telefon
-
Mobil
Lage
Wohnen in zentraler Lage von Wiener Neustadt, wo sich Komfort und Stadtleben vereinen - nur wenige Gehminuten von der beliebten Merkur City entfernt.
Bus 500 m | Bahnhof 1,50 km | Autobahnanschluss 3 km | Flughafen 2,50 km | Supermarkt 500 m | Bäckerei 1 km | Einkaufszentrum 500 m | Ärzte 1 km | Apotheke 500 m | Krankenhaus 1 km | Klink 2,50 km | Schule 500 m | Kindergarten 500 m | Universität 2 km | Höhere Schule 2 km | Bank 1 km | Post 1 km | Polizei 1 km | Geldautomat 1 km
Die ungefähre Position der Immobilie auf Google Maps ansehen (Link auf externe Website)